Sari la conținutul principal

Container Sanitar

Container Sanitar

Containere sanitare mobile

Containerele sanitare oferă o soluție practică, igienică și rapidă pentru amenajarea unor grupuri sanitare mobile, indiferent de locație. Fie că este vorba despre șantiere, evenimente, unități de cazare temporară sau situații de urgență, aceste containere sunt gândite pentru a răspunde celor mai exigente cerințe în materie de igienă și confort.

Containerele sanitare pot fi echipate cu o gamă variată de dotări:

  • Lavoare cu robinet și oglinzi;
  • WC-uri și cabine de duș complet funcționale;
  • Dozatoare de săpun, suporturi pentru prosoape de hârtie, coșuri de gunoi;
  • Sisteme de încălzire și ventilare;
  • Iluminat interior eficient energetic;
  • Accesorii suplimentare la cerere.

Spații sanitare - toalete și dușuri

Oferim containere sanitare echipate cu toalete, dușuri și chiuvete, care pot fi utilizate individual sau în combinație, în funcție de nevoile proiectului tău. Acestea pot fi instalate rapid, relocate cu ușurință și adaptate pentru utilizare pe termen scurt sau lung.

 

Disponibile în diferite dimensiuni și configurații, containerele WC și cu duș sunt soluția ideală pentru spații unde infrastructura sanitară lipsește sau este insuficientă.

Containere sanitare - specificații tehnice

Modul mixt IN26 & WC

1 toaletă, 1 chiuvetă, 1 boiler 5L 
Ușor de ansamblat, se poate utiliza în orice configurație
Adecvat pentru 5 persoane

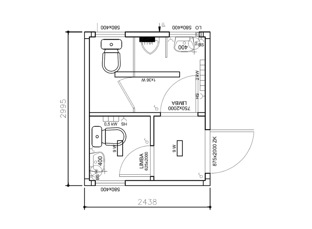
Modul mixt IN26 - WC & duș

1 toaletă, 1 chiuvetă, 1 duș, 1 boiler 80L
Ușor de ansamblat, se poate utiliza în orice configurație
Adecvat pentru 5 persoane

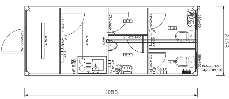
Modul sanitar femei/bărbați

6 cabine toaletă, 3 pisoare, 2 chiuvete, 2 boilere de  5L
Adecvat pentru 50 femei și 25 bărbați

Modul sanitar INS1 - dușuri, lavoare, boiler

4 dușuri, 2 lavoare cu câte 3 baterii, 1 boiler 400L 
Adecvat pentru 50 persoane

Modul sanitar INS2 -dușuri, toalete, boiler

2 dușuri, lavoar cu 2 baterii, 1 chiuvetă
2 toalete, 2 pisoare, 1 boiler 300L
Adecvat pentru 25 persoane

Modul sanitar INS3 - toalete

4 toalete, 3 pisoare, 2 chiuvete, 2 boilere de 5L
Adecvat pentru 50 persoane

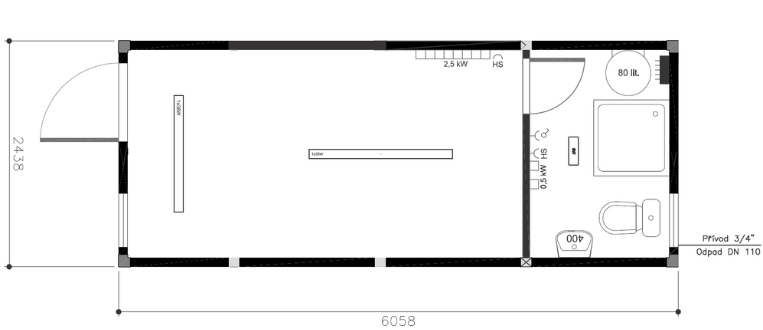
Modul sanitar - duș, toaletă, minibucătărie

1 duș, 1 toaletă, 1 pisoar, 1 boiler 80L
1 chiuvetă, 1 boiler 5L, 1 minibucătărie
Adecvat pentru 10 persoane

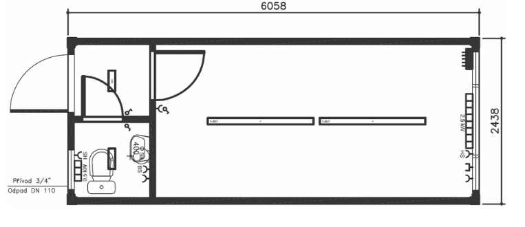
Modul sanitar mixt femei/bărbați - toalete, minibucătărie

2 toalete, 1 pisoar, 2 chiuvete
1 minibucătărie, 2 boilere de 5L
Adecvat pentru 25 persoane

Modul sanitar AX1 - INS2

2 dușuri, lavoar cu 2 baterii, 1 chiuvetă
2 toalete, 2 pisoare, 1 boiler 300L
Adecvat pentru 25 persoane

Modul sanitar AX1 - INS3

4 toalete, 3 pisoare, 2 chiuvete, 2 boilere de 5L
Adecvat pentru 50 persoane

Modul sanitar mixt femei/bărbați

2 toalete, 1 pisoar, 2 chiuvete
1 minibucătărie, 2 boilere de 5L
Adecvat pentru 25 persoane

Modul sanitar AX1 - INS1 - dușuri

4 dușuri, 2 lavoare cu câte 3 baterii, 1 boiler 400L
Adecvat pentru 50 persoane

Modul sanitar INS4

2 chiuvete, 1 duș, 1 toaletă, 1 pisoar, 1 boiler 80L
Adecvat pentru 10 persoane

Modul sanitar mixt femei/bărbați INS5

2 toalete, 1 pisoar, 2 chiuvete
2 boilere de 5L
Adecvat pentru 25 persoane

© 2025 Algeco România. Toate drepturile rezervate.